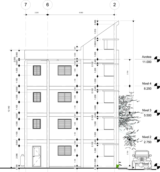
Edificio Onelia
2011 San Juan, R.D.
R. Martínez Báez
Arquitectura, Modelado, Supervisión parcial 1er Nivel

Edificio de apartamentos, con condiciones económicas y expresión simple, pero sin embargo destacado. 

Concepto
Construción
Desarrollo
Proyectos Relacionados