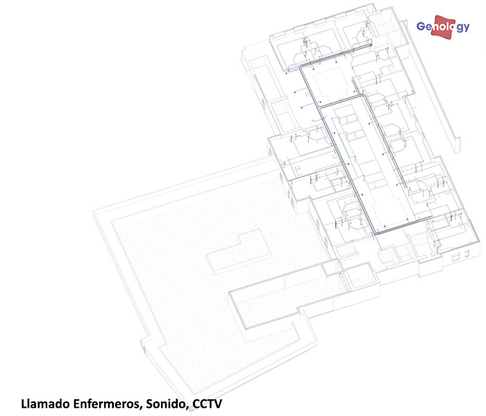
Modelado BIM Instalaciones Eléctricas Torre Unión Médica
2021, Avenida Juan Pablo Duarte, Santiago De Los Caballeros, 51000, R.D.
G. Francisco Guerrero, G. Concepción Payano, K. Feliz Santana, M. Zhang Mago, R. Martinez Baez
Modelado

Modelado BIM de las Instalaciones Eléctricas & Especiales de la Torre Unión Médica en colaboración con la empresa CONELCA S.A.

Extendemos nuestro agradecimiento a la Arq. Ariana Luna por su invaluable participación.

Concepto
Construción
Desarrollo
Proyectos Relacionados